Diseño de restaurante modular en madera - Villa Gesell
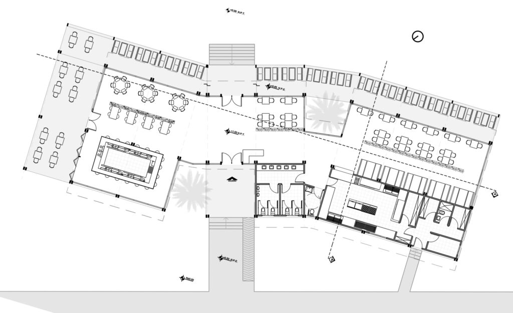
Este proyecto explora la modulación en madera para crear un espacio dinámico y funcional frente al mar. En el segundo cuatrimestre del primer año de arquitectura 1 realizamos el proyecto de un restaurante ubicado frente a las playas de Villa Gesell en Argentina. El reto principal fue entender cómo funciona la modulación en construcciones de madera y también hacer que los módulos se conformen un conjunto en el cual alberga las funcionalidades dentro.
Por mi parte busqué un módulo regular y fácil de replicar, originalmente me generaba una tira larga la cual traté de complejizar creando quiebres donde el resultado final es una «serpiente» que hace zigzag en la arena de las playas de Villa Gesell. Algunos de los parámetros que tuvimos que cumplir fueron: Cuidar las proporciones en alturas(trabajados en cortes), tener en cuenta cómo funcionaría la estructura(detalle del armado de la estructura), un video de presentación de nuestro proyecto(en la parte final del blog).
El proyecto lo realicé en la cátedra de arquitectura Boskoboinic (PLAN B), bajo la guía de los profesores Bill Sarmiento y Pol Vrecic, quienes aportaron valiosas correcciones y sugerencias a lo largo del proceso.
CORTE A
CORTE B
VISTA FRONTAL
VISTA TRASERA
